Rada Rodziców

przy Szkole Podstawowej im. Henryka Sienkiewicza w Starych Babicach

ORGANIZOWANE INICJATYWY 

cykliczne

DZIEŃ NAUCZYCIELA

Co roku 14 października w imieniu wszystkich rodziców i uczniów obdarowujemy wszystkich nauczycieli oraz pracowników szkoły własnoręcznie wykonanymi koszami upominkowymi.

Mikołajki

Tradycją stała się już wizyta Mikołaja. 6 grudnia dzieci obdarowuje słodkościami.

REGÓLAMIN KONKURSU - DO POBRANIA

KARTA ZGŁOSZENIOWA - DO POBRANIA

KONKURS NA ŚWIĄTECZNĄ BOMBKĘ

Konkurs przewidziany dla uczniów szkoły podstawowej i ich rodzin.

Uczniowie podzieleni są na trzy kategorie wiekowe:

klasy 0 – 3,

klasy 4 – 6

klasy 7 – 8

Tematyka prac:   Boże Narodzenie – bombka świąteczna.Technika prac:    dowolna technika plastyczna.Format prac:       bombka w dowolnym kształcie oraz z dowolnego, bezpiecznego materiału (styropian, papier, masa solna) konieczna zawieszka; dopuszczamy prace indywidualne (bez udziału rodziny, rodziców)

Do każdej pracy dołączona musi być informacja zawierająca następujące dane: imię i nazwisko autora, wiek, klasa oraz dołączenie wypełnionej karty zgłoszeniowej.

W razie niejasności lub pytań związanych z konkursem prosimy o kontakt:przewodniczacy@rr.szkola-starebabice.pl

Prace wraz z kartą zgłoszeniową prosimy składać do dnia 6 grudnia do godz. 16.00 w Kancelarii szkoły (liczy się data dostarczenia do placówki organizatora), na adres: Szkoła Podstawowa im. Henryka Sienkiewicza w Starych Babicach ul. Polna 40 05-082 Stare Babice z dopiskiem: „Konkurs świąteczny – Rodzinna Bombka”

Wyniki konkursu zostaną ogłoszone 11 grudnia.

bieżące

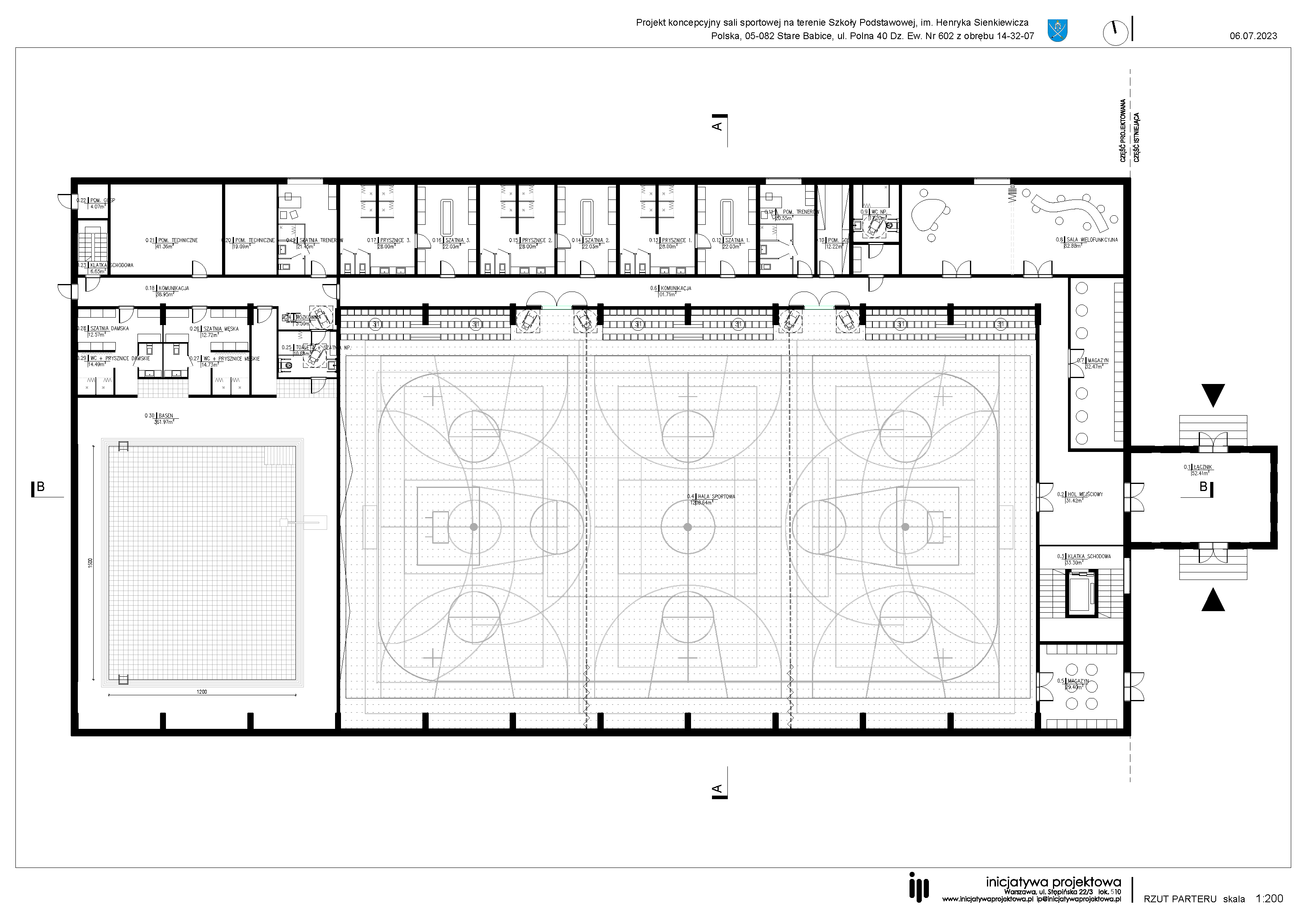
Dotacja na budowę hali sportowej

Dzisiaj tj. 2.10.2025 Wójt zawarł z Wojewodą Mazowieckim umowę dotacyjną na kwotę 17.758.000,00 zł finansowania hali sportowej w naszej szkole. Jutro ruszają intensywne prace dotyczące przetargu publicznego. Kolejny krok zbliżający dzieci do nowej hali sportowej został wykonany!🙂Przypominamy, że główne naciski w kierunku gminy były właśnie kierowane ze strony przedstawicieli rady rodziców.

Dzień dziecka

W tym dniu (2025) zmieniliśmy boisko szkolne w wielką salę zabaw i rozrywki dla dzieci z całej szkoły. Sprowadzone zostały dmuchańce, trampoliny i inne rozrywki, aby oderwać dzieci od nauki i zapewnić im świetną zabawę. 

Dojście do szkoły

Na naszych zebraniach poruszana była kwestia bezpieczeństwa na chodniku przed szkołą. Szybko poruszający się rowerzyści oraz osoby na hulajnogach elektrycznych oraz brak odpowiedniego oświetlenia po zmroku. Jesteśmy dumni, że nasze prośby zostały rozpatrzone w gminie i powstały znaki informacyjne (spowalniacze) oraz mocne oświetlenie.

Remont łazienek

Dzięki wielu interwencjom, trwające od kilku lat prośby o remont toalet wreszcie doszły do skutku. Wiele rozmów i działań w tym temacie zawdzięczamy przewodniczącemu Arturowi Leszczyńskiemu.

Parasole

Pod koniec roku szkolnego 2024-2025 udało się zrealizować zamówienie na 4 parasole przeciwsłoneczne.


Panie ze świetlicy szkolnej od dawna zgłaszały problem dużego nasłonecznienia na części boiska szkolnego przeznaczonej na świetlicę. Rozważane były różne rozwiązania, ale ze względu na wygodę i mobilność oraz po konsultacjach z Dyrekcją szkoły zdecydowaliśmy się na parasole przeciwsłoneczne o średnicy 4 m, opatrzone nazwą i logo szkoły.


Dzieci bardzo chętnie korzystają z cienia. Na kocykach w ramach zajęć świetlicowych organizowane są gry, zabawy i strefa relaksu.

Kanapy na korytarzach

W celu zapewnienia wygodnego odpoczynku w trakcie przerw zostały zakupione kanapy i ustawione na korytarzach na każdej kondygnacji.

Hala Sportowa

Wspólnie z Wójtem Gminy Staramy się o nową przestrzeń sportową dla naszych dzieci.